Tủ bếp Inox cánh kính có bàn đảo tiện lợi của nhà chị Hạnh, Nguyễn Viết Xuân, Thanh Xuân
Căn bếp là nơi bắt đầu của những bữa ăn ấm áp, những khoảnh khắc quây quần và cũng là không gian sử dụng nhiều nhất trong mỗi ngôi nhà. Trong dự án lần này, Nội Thất Toàn Thắng đã mang đến giải pháp tủ bếp inox cánh kính hiện đại, đáp ứng trọn vẹn cả ba yếu tố: thẩm mỹ tinh tế, công năng tối ưu và độ bền vượt trội.


Phối cánh 3D dự án tủ bếp Inox cánh kính nhà chị Hạnh - Nguyễn Viết Xuân
1. Giới thiệu tổng quan dự án
Trong nhịp sống hiện đại, căn bếp không còn đơn thuần là nơi nấu nướng mà đã trở thành không gian kết nối gia đình, nơi mỗi bữa ăn đều mang theo cảm xúc và sự ấm áp. Đó cũng chính là mong muốn ban đầu của khách hàng khi tìm đến giải pháp tủ bếp inox cánh kính cho căn hộ của mình.
Thông tin dự án
- Loại hình nhà ở: Nhà đất
- Chủ dự án: Chị Hạnh - Nguyễn Viết Xuân
- Phong cách: Hiện đại – sang trọng – bền vững theo thời gian
- Đơn vị thi công: Nội Thất Toàn Thắng
Nhu cầu ban đầu của khách hàng
Khách hàng chia sẻ rằng họ từng e ngại các dòng tủ bếp gỗ công nghiệp vì:
- Lo lắng ẩm mốc, bong tróc trong môi trường bếp
- Khó vệ sinh, nhanh xuống màu
- Tuổi thọ không tương xứng với chi phí đầu tư
Chính vì vậy, khách hàng ưu tiên một giải pháp chắc chắn – chống nước tuyệt đối – thẩm mỹ cao, đồng thời phải hài hòa với tổng thể nội thất căn hộ.

Ảnh thực tế sau hoàn thiện tủ bếp Inox cánh kính nhà chị Hạnh
Lý do Chị Hạnh lựa chọn tủ bếp inox cánh kính
Tủ bếp inox cánh kính được lựa chọn như một lời giải trọn vẹn:
- Inox 304 bền bỉ, không gỉ sét, không mối mọt
- Cánh kính bóng mang lại cảm giác sang trọng, hiện đại
- Dễ lau chùi, giữ bếp luôn sáng và sạch
Không gian bếp được thiết kế mở tạo cảm giác rộng rãi và thông thoáng. Ánh sáng tự nhiên kết hợp cùng hệ đèn LED hắt tủ giúp căn bếp luôn nổi bật, dù ban ngày hay ban đêm

Không gian bếp được thiết kế mở tạo cảm giác rộng rãi và thông thoáng
2. Thiết kế
Chất liệu thùng tủ
- Inox 304 cao cấp, gia công chấn gấp chắc chắn
- Chịu lực tốt, không biến dạng theo thời gian
- Phù hợp tuyệt đối với môi trường bếp nhiều hơi nước và nhiệt độ cao

Thùng tủ Inox được tạo nên bằng công nghệ chấn gấp CNC hạn chế tối đa mối hàn
Chất liệu cánh tủ
- Kính cường lực sơn màu bóng
- Bề mặt phẳng mịn, phản chiếu ánh sáng tốt
- An toàn khi sử dụng, khó trầy xước trong sinh hoạt hằng ngày
Màu sắc chủ đạo
Sự phối màu được tính toán kỹ lưỡng để tạo chiều sâu cho không gian:
- Cánh trên: màu be – champagne nhẹ, tạo cảm giác thanh lịch
- Cánh dưới & tủ kho: xám đậm + đen hiện đại, che bẩn tốt
- Mặt đá bếp: trắng sáng, sạch sẽ
- Kính ốp bếp: xanh nhạt, dịu mắt và dễ vệ sinh
Tất cả hòa quyện tạo nên một căn bếp vừa sang, vừa ấm, không hề lạnh dù sử dụng vật liệu kim loại và kính.

Mặt đá bếp trắng sáng, sạch sẽ kết hợp với đá ốp bếp xanh nhạt

Giá bát nâng hạ Hafele tiện lợi khi sử dụng

Bố cục & kiểu dáng
- Tủ bếp chữ L kết hợp đảo bếp trung tâm
- Có tủ kho cao kịch trần tích hợp thiết bị và lưu trữ đồ khô
- Lối đi được tính toán hợp lý, thao tác nấu nướng liền mạch
4. Công năng sử dụng – Đẹp thôi chưa đủ



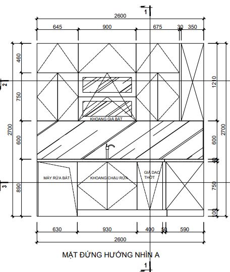
Bản vẽ kỹ thuật của tủ bếp nhà chị Hạnh
Phân chia khoang tủ khoa học
- Tủ chậu rửa riêng biệt
- Khu vực nấu gọn gàng, dễ thao tác
- Tủ trên lưu trữ đồ nhẹ
- Tủ dưới phân chia ngăn kéo tiện lợi, rộng rãi để đựng xoong nồi...
- Tủ để đồ kho rộng rãi, tiện lợi

Tủ dưới phân chia ngăn kéo tiện lợi, rộng rãi để đựng xoong nồi...

Tủ để đồ kho rộng rãi, tiện lợi
Độ bền & khả năng chịu lực
- Thùng inox chịu tải tốt, không võng
- Không bị ảnh hưởng bởi nước, dầu mỡ, nhiệt độ
- Phù hợp sử dụng lâu dài, gần như không cần bảo trì
5. Đánh giá tổng thể sau khi hoàn thiện

Ảnh 3D và bổ công năng


Tủ bếp Inox thực tế sau khi thi công thực tế
Về thẩm mỹ
Căn bếp trở thành điểm nhấn nổi bật của căn hộ – hiện đại, tinh tế và rất “đã mắt”.
Về độ bền & công năng
Tủ bếp inox cánh kính mang lại sự an tâm dài hạn, phù hợp với gia đình đề cao chất lượng và trải nghiệm sử dụng.
Mức độ hài lòng
Khách hàng hài lòng cao cả về thiết kế, vật liệu lẫn cách bố trí công năng.
Video toàn cảnh tủ bếp Inox cánh kính nhà chị Hạnh
Một căn bếp đẹp không chỉ để ngắm – mà để dùng bền suốt nhiều năm.Nếu bạn đang tìm một giải pháp tủ bếp chắc chắn, chống nước tuyệt đối, thẩm mỹ cao và ít phải lo lắng về sau, thì tủ bếp inox cánh kính chính là lựa chọn xứng đáng để đầu tư. Liên hệ ngay Nội Thất Toàn Thắng qua Zalo: 0983.457.696 hoặc Hotline 0983.457.696 để được:
- Tư vấn trực tiếp theo diện tích & thói quen sử dụng thực tế
- Lên bản vẽ 3D chi tiết, nhìn thấy căn bếp tương lai trước khi thi công
- Báo giá rõ ràng – minh bạch – đúng chất lượng vật liệu
- Thi công chuẩn chỉnh, bảo hành dài hạn, yên tâm sử dụng lâu dài
Xem thêm các dự án tủ bếp Nội Thất Toàn Thắng đã thi công:
>>> Tủ bếp inox cánh kính chữ L tone màu trắng - vàng đồng tại Sóc Sơn
>>> Tủ bếp inox cánh kính cho căn bếp diện tích nhỏ tại Mễ Trì